Finden Sie Ihre

Die Ramseyer Haus AG plant und baut für Sie.

Neubau Einfamilienhaus mit Photovoltaikanlage, Carport
für 2 Fahrzeuge und offenem Aussenparkplatz
Parzelle Nr. 548, Höhenweg in 4444 Rümlingen BL

Informationen Einfamilienhaus

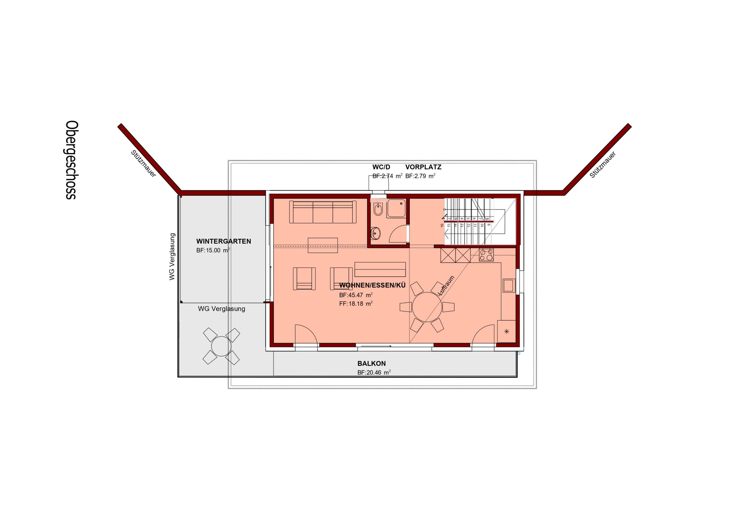
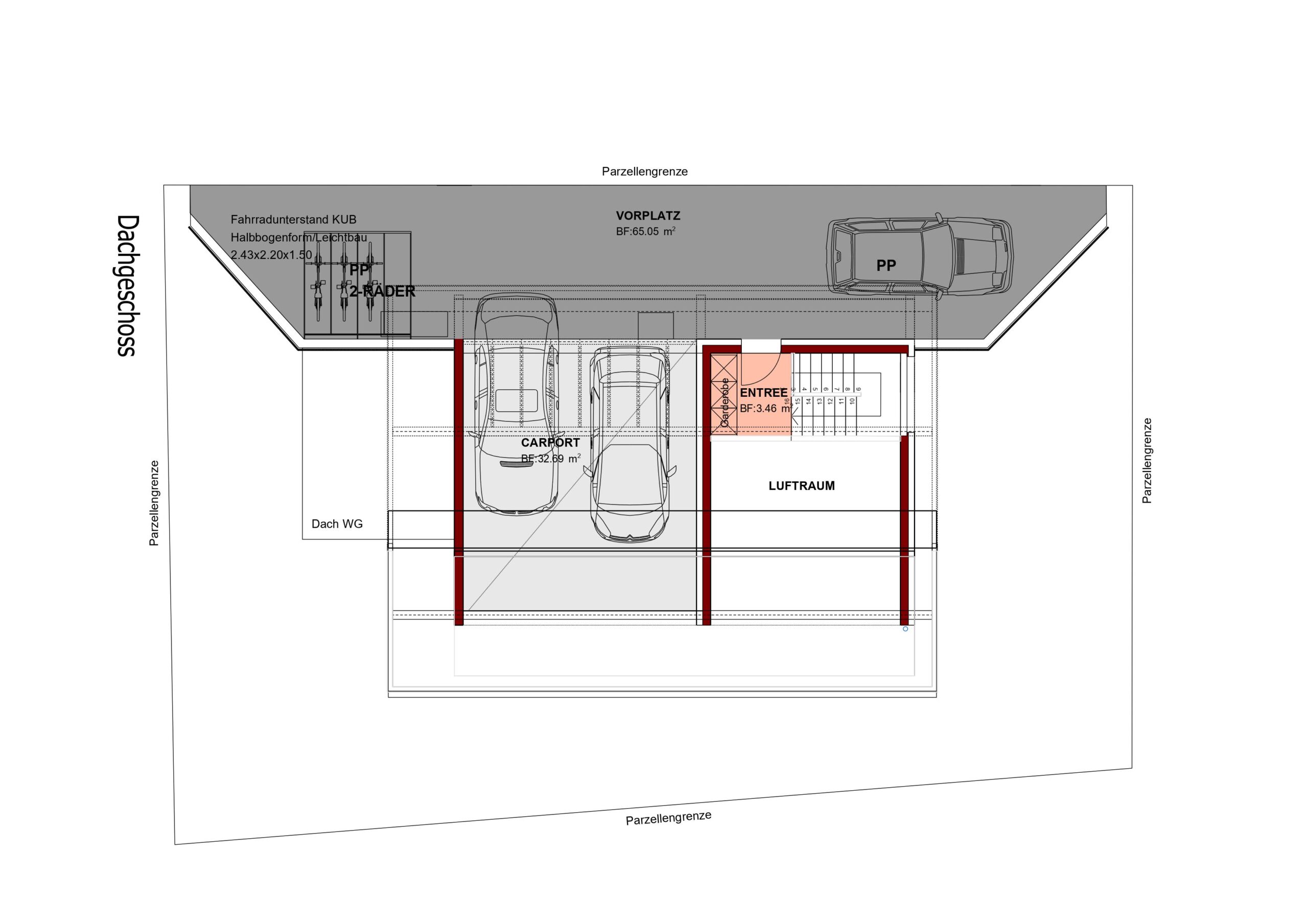
ObjektEinfamilienhaus mit Carport für 2 Fahrzeuge in Rümlingen BL
Baujahr2024
Anzahl Zimmer3.5
Wohnfläche Brutto181 m2
Landanteil308.75 m2
Bäder1
WC2
Duschen2
CarportJa, für 2 Fahrzeuge
AussenparkplatzJa
WintergartenJa, Verglast für Sitzplatz/Balkon (Grösse 20.30 m2)
Kubatur585 m3

Für mehr Informationen zu diesem Haus, können Sie hier eine vollständige Dokumentation herunterladen.

Adresse

Newsletter